Zum Verkauf: Gewerbeimmobilie – Renditeobjekt
39041 Gossensaß / Colle Isarco
Zum Verkauf steht ein vermietetes Geschäftslokal mit ca. 141,1 m² in zentraler Lage in Gossensaß. Der Käufer übernimmt eine bereits bestehende Mietrendite.
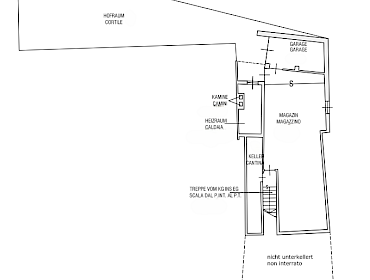
Die Einheit besteht aus einer großzügigen Verkaufsfläche, einem Lagerraum von 21,32 m², einem Badezimmer und einer Terrasse von ca. 13 m². Im Untergeschoss befinden sich ein weiteres Lager mit 52,17 m², eine Garage sowie ein Hof von ca. 85,6 m² mit Autoabstellplätzen.
Das Geschäft profitiert von guter Sichtbarkeit dank der strategisch Lage.
Eine sichere Investition mit hervorragendem Preis-Flächen-Verhältnis – kontaktieren Sie uns für weitere Informationen!
Flächen
- Anzahl separater WC's 1
- Gewerbefläche ca. 141 m²
Ausstattung
- Etage Erdgeschoss
- Personenaufzug nein
- Keller ja
Zustandsangaben
- Zustandsart gut
Verwaltung
- vermietet ja
Energieausweis
- Energieausweis vorhanden ja
- Energieeffizienzklasse G
- Art des Energieausweises nach Verbrauch
- Verbrauchskennwert insgesamt ca. 160 kWh/(m²a)
- Verbrauch inkl. Warmwasser nein
Umfeld
- Gebiet Dorfzentrum
- Aussicht Bergblick
- Distanz zum Fernbahnhof ca. 0,5 m
- Distanz zum Zentrum ca. 20 m






